Home Office Planejado: O mundo mudou. A linha entre o profissional e o pessoal nunca foi tão tênue. E, no centro dessa transformação, está um desafio: como criar um escritório produtivo quando o espaço é um luxo e cada centímetro precisa ser disputado?
Trabalhar na mesa da cozinha, com as costas doendo e as pernas emboladas nos cabos do computador, é uma realidade para muitos. Mas não precisa ser assim. Mesmo no menor dos apartamentos, é possível esculpir um refúgio de produtividade. A chave? Planejamento, verticalização e móveis que trabalham em dobro.
Neste projeto, vou guiá-lo pela criação de um home office planejado em um espaço de apenas 2m². Sim, é possível. E o resultado pode ser surpreendentemente funcional e elegante.
O Diagnóstico do Espaço
Antes de qualquer projeto, é preciso olhar para o espaço com olhos de detetive. Onde está o potencial escondido?
Os 5 Lugares Improváveis para um Home Office
- O vão da escada: Se você tem escada, o espaço embaixo dela é uma mina de ouro.
- O corredor: Um corredor largo demais pode abrigar uma bancada estreita e prateleiras.
- O nicho do quarto: Muitos apartamentos têm um recuo na parede do quarto que parece sem função. É o lugar perfeito.
- A sacada (se envidraçada e isolada termicamente): Trabalhar com luz natural é um privilégio.
- O fundo do armário: Sim, existem projetos de home office dentro de armários. Você fecha a porta e o trabalho desaparece.
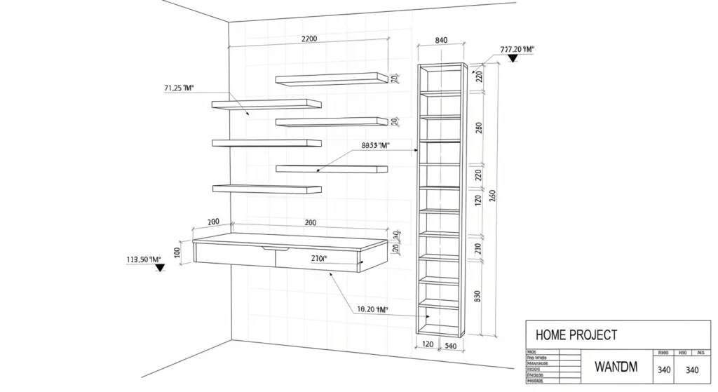
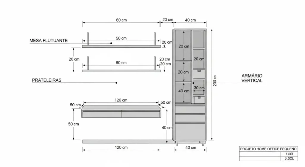
No meu caso, o espaço era um nicho no corredor: 1,20m de largura por 0,60m de profundidade.
O Projeto: Cada Centímetro é Estratégico
Com medidas tão justas, a verticalização é a única saída. O chão é precioso demais para ser ocupado por pés de móvel.

A Escrivaninha Flutuante
O coração do projeto é a bancada. Optei por uma escrivaninha flutuante em MDF de 25mm, com 1,20m de comprimento por 0,50m de profundidade. A fixação foi feita com mãos-francesas (suportes metálicos invisíveis) embutidas na parede.
A altura ideal? 75cm do chão, padrão ergonômico para a maioria das pessoas. Mas atenção: essa altura deve considerar a sua cadeira e sua altura pessoal. Uma dica valiosa: sente-se, apoie os braços como se fosse digitar e peça para alguém medir a altura ideal para você.
O Módulo Superior: Organização e Estilo
Acima da bancada, projetei dois módulos de prateleiras aéreas:
- Primeiro nível (a 1,50m do chão): Prateleira de 20cm de profundidade para livros e pastas.
- Segundo nível (a 1,90m do chão): Armário com portas de correr para materiais que não precisam estar à vista.
Entre a bancada e o primeiro nível, deixei um vão livre de 50cm para monitores. Essa altura é sagrada: precisa acomodar seu equipamento sem apertar os olhos.

A Execução: Desafios e Soluções
Com o projeto pronto, vieram os desafios práticos da execução.
O Problema dos Cabos
Em um espaço pequeno, a desorganização visual é amplificada. Cabos à vista estragam qualquer projeto. A solução veio em três frentes:
- Furo na bancada: Um furo de 5cm de diâmetro na parte de trás da bancada, com uma tampa cega, por onde passam todos os cabos.
- Canaleta adesiva atrás da bancada: Colada na parede, esconde os fios que descem do monitor e do computador.
- Tomadas planejadas: Antes de fechar a parede, fiz a leitura do nosso guia sobre como planejar tomadas para home office e posicionei duas tomadas exatamente na altura da bancada (acima dela) e duas atrás da bancada (para os equipamentos).
A Iluminação que Não Cansa
Em um nicho, a iluminação natural é limitada. Instalei uma fita de LED na parte inferior do módulo superior, criando uma luz de tarefa indireta que ilumina a bancada sem ofuscar. A temperatura escolhida foi 4000K (neutra), ideal para trabalho prolongado.
A Organização Interna
Um home office pequeno exige disciplina. Cada item precisa de um lugar.

O Módulo com Gavetas
Na lateral direita, projetei uma pequena torre com três gavetas:
- Gaveta superficial (8cm): Para canetas, clipes, papéis de rascunho.
- Gaveta média (12cm): Para cadernos e blocos.
- Gaveta funda (20cm): Para arquivos e pastas suspensas (sim, com adaptador, cabe perfeitamente).
O segredo está nos divisores internos, que podem ser feitos com finas chapas de MDF ou até com organizadores prontos comprados avulsos.
O Toque Final: Personalidade
Um home office não é apenas funcional; ele precisa inspirar. No nicho, coloquei:
- Uma pequena tela com uma impressão artística.
- Um vaso com uma planta que tolera meia-sombra (a zamioculca é imbatível).
- Um organizador de parede magnético para lembretes visuais.

Hoje, sentar para trabalhar nesse nicho é um prazer. O que antes era um espaço morto no corredor se tornou o canto mais produtivo da casa. As costas não doem mais, os cabos não embaralham e a mente se concentra com muito mais facilidade.
Se você tem um cantinho subutilizado em casa, olhe para ele com outros olhos. Com planejamento, ele pode se tornar o seu melhor escritório.

